阿摩線上測驗
登入
首頁
>
技檢◆廣告設計-丙級
> 無年度 - 11300 廣告設計 丙級 工作項目 05:圖學#19251
無年度 - 11300 廣告設計 丙級 工作項目 05:圖學#19251
科目:
技檢◆廣告設計-丙級 |
選擇題數:
100 |
申論題數:
0
試卷資訊
所屬科目:
技檢◆廣告設計-丙級
選擇題 (100)
1.
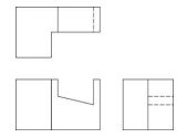
以下三視圖何者正確?
。
2.
以下三視圖何者正確?
。
3.
以下三視圖何者正確
。
4.
以下三視圖何者正確?
。
5.
以下三視圖何者正確?
。
6.
以下三視圖何者正確?
7.
以下三視圖何者正確?
。
8.
以下三視圖何者正確?
。
9.
以下三視圖何者正確
。
10.
以下三視圖何者正確?
。
11.
以下三視圖何者正確?
。
12.
以下三視圖何者正確?
。
13.
以下三視圖何者正確?
。
14.
以下三視圖何者正確?
。
15.
以下三視圖何者正確?
。
16.
如左圖以下三視圖何者正確?
。
17.
以下三視圖何者正確?
。
18.
以下三視圖何者正確?
。
19.
以下三視圖何者正確?
。
20.
以下三視圖何者正確?
。
21. 製圖紙 A1 的尺寸為 (A)841×1189㎜(B)650×880㎜(C)594×841㎜(D)450×650㎜。
22. 投影箱展開後可得幾個視圖 (A)3個(B)4個(C)5個(D)6個。
23. 三角形柱的視圖採用 (A)半視圖(B)單視圖(C)兩視圖(D)三視圖。
24. 將對稱物體切割四分之一的剖面表示法是 (A)全剖面(B)半剖面(C)旋轉剖面(D)移轉剖面。
25. 輔助視圖中的 RP 是代表 (A)水平面(B)垂直面(C)參考面(D)傾斜面。
26. μm 是 (A)1/1000m(B)1/1000㎜(C)1/100㎜(D)1/10000m。
27. 為避免尺寸界限相交,長尺寸應置於短尺寸之 (A)內(B)外(C)中(D)右。
28. 一般公制圓錐銷的錐度為 (A)1:10(B)1:20(C)1:50(D)1:100。
29. 等角畫立體圖與等角投影立體圖是 (A)形狀相同大小亦相同(B)大小不同形狀亦不同(C)大小不相同而形狀相同 (D)形狀不同大小相同。
30. 正投影三視圖中主要的三個視圖為 (A)前視圖、仰視圖、側視圖(B)前視圖、俯視圖、右側視圖(C)前視圖、底視 圖、左側視圖(D)前視圖、仰視圖、背視圖。
31. 30°±15 就合格的範圍為 (A)29°85'~30°15'(B)29°45'~30°15'(C)29°45'~30°30'(D)29°55'~30°15'。
32. 甚薄材料剖切時,其剖切面 (A)照畫剖面線(B)全部塗黑(C)全部空白(D)不剖切。
33. 兩平面相交可得一 (A)圓(B)錐線(C)直線(D)橢圓。
34. 視圖中斜面之真實形狀表現在 (A)上視圖中(B)剖面圖中(C)輔視圖中(D)展開圖中。
35. 斜投影圖中,垂直於投影面之圓或圓弧為 (A)擺線(B)螺旋線(C)橢圓曲線(D)圓錐曲線。
36. 設一 n 邊形則至少可將此 n 邊形分成 (A)n-2(B)n(C)n-1(D)n+2 個三角形。
37. 正 12 面體之展開,表面為 12 個 (A)正三角形(B)正方形(C)正五邊形(D)正六邊形。
38. 正 24 面體之展開,表面為 24 個 (A)正三角形(B)正方形(C)正六邊形(D)正八邊形。
39. 剖切一圓錐體所得之四平面曲線為 (A)雙曲線、拋物線、圓、漸開線(B)圓、橢圓、拋物線、雙曲線(C)擺線、雙 曲線、漸開線、圓(D)圓、拋物線、螺旋線、雙曲線。
40. 下列那一個名稱為非標準組織的簡稱 (A)CNS(B)JIS(C)FDS(D)ISO。
41. 角柱與圓柱使用平行線展開法可得 (A)矩形(B)圓形(C)橢圓形(D)菱形。
42. 註解圓孔用之箭頭,其指線應當通過圓之 (A)切線(B)邊線(C)中心(D)不拘。
43. 視圖垂直於某一平面時,則該平面顯現真實形狀、大小,可使用 (A)剖面圖(B)展開圖(C)立體圖(D)輔助視圖。
44. 兩線所夾之角低於 90°是謂 (A)鈍角(B)銳角(C)直角(D)非角。
45. 何者在投影面上無法獲得真實的形狀 (A)點(B)線(C)平面(D)歪面。
46. 直線與投影面垂直,其正投影為一點,稱為該直線 (A)斜視圖(B)端視圖(C)透視圖(D)邊視圖。
47. 輔視圖上所顯示的,為其從所投影之鄰接視圖上之尺寸,所不能顯示出的主要是 (A)長度(B)深度(C)高度(D)實形 大小。
48. 圖學的要素是 (A)正投影與斜投影(B)英文字及仿宋字(C)線條及文字(D)美術圖及工程圖。
49.學習圖學的目的在於 (A)看圖(B)讀圖與製圖(C)畫圖(D)學習畫圖方式。
50. 繪圖紙必須 (A)只要白,不計其他 (B)粗糙且較厚紙張 (C)色白而不刺目,紙質堅韌,不易起糙 (D)光滑而帶色澤。
51. 上墨畫圓時應先上 (A)小圓 (B)大圓 (C)圓弧 (D)無先後順序。
52. 所謂對開圖紙其大小是全開的 (A)1/4 (B)1/2 (C)2 (D)4 倍。
53. 依中國(CNS) 國家標準規定,所採用之投影法為 (A)第一角法 (B)第三角法 (C)第二角法 (D)第四角法。
54. 鴨嘴筆主要是用來 (A)畫線 (B)寫字 (C)寫字與畫線 (D)寫字與圖畫。
55. 平行尺可用以代替 (A)丁字尺 (B)比例尺 (C)三角板 (D)鋼尺。
56. 製圖用三角板角度為 (A)20°,30°,60°,90°(B)30°,45°,60°,90°(C)30°,50°,70°,90°(D)45°,50°,75°,90°。
57. 分規 (A)只能上墨用(B)只能畫鉛筆線(C)只畫鉛筆線與上墨(D)用來度量截取尺寸。
58. 點的投影為 (A)點(B)消失(C)線(D)平面。
59. 投影幾何是訓練 (A)一(B)二(C)三(D)四 度空間的概念。
60. 下圖何種屬於中性色? (A)紅色(B)橙色(C)綠色(D)藍色。
61. 畫較長的直線,為了使線條粗細能夠一致,畫線時鉛筆應 (A)改變方向(B)用力調整(C)稍微轉動(D)不變。
62. 二圓互相內切,則連心線長等於 (A)兩直徑和(B)兩直徑差(C)兩半徑和(D)兩半徑差。
63. 若視線垂直於投影面,其投影即為 (A)斜投影(B)輔助投影(C)正投影(D)副投影 法。
64. 一個四方形投影箱展開後,可得 (A)四(B)五(C)六(D)七 視圖。
65. 橢圓的長徑與短徑之關係為 (A)平行(B)相交(C)垂直(D)傾斜。
66. 一點保持一方向運動,其軌跡為 (A)一點(B)曲線(C)拋物線(D)直線。
67. 空間可分成幾個象限 (A)一(B)二(C)三(D)四。
68. 正投影中畫面與物體的垂直連線稱為 (A)視線(B)投影線(C)視平線(D)地平線。
69. 繪圖時鉛筆級別中之 H 表示 (A)硬而淡(B)軟而黑(C)硬而黑(D)軟而淡。
70. 畫不規則曲線可使用 (A)鋼尺(B)丁字尺(C)曲線尺(D)消字板。
71. 直線與三主要投影平面中之兩個平面呈平行者為 (A)正線(B)斜線(C)歪線(D)交線。
72. 一物體與另一物體相交接時, 稱為 (A)展開體(B)交線體(C)相關體(D)等斜體。
73. 視圖的選擇以 (A)實線(B)外形(C)虛線(D)折線 最少為佳。
74. 視圖中常會有線條重疊的現象發生,其最優先次序選擇為 (A)虛線(B)輪廓線(C)中心線(D)剖面線。
75. 輔助視圖中之"RP"代表 (A)參考面 (B)傾斜面(C)水平面(D)複斜面。
76.投影線彼此平行,但與投影面成傾斜的投影是 (A)正投影(B)透視投影(C)等角投影(D)斜投影。
77. 註入尺寸時, 數字方向應與尺度線成 (A)垂直(B)平行(C)相反(D)傾斜。
78. 代表圓柱之半徑的符號為 (A)φ(B)R(C)C(D)D。
79. 等角圖中,凡與等角軸平行而直接可在上面量度線長的線叫 (A)等角線(B)投影線(C)輪廓線(D)漸開線。
80. 凡不能用視圖或尺度表達之資料,用文字表之稱為 (A)符號(B)註解(C)字法(D)線條。
81. 旋轉剖視是旋轉 (A)30°(B)45°(C)90°(D)180°。
82. 中心線是用以表示物體的 (A)大小(B)對稱軸(C)直徑(D)高度。
83. 許多物體或其某些部分,常因其主要之面平行於主投影面而不能顯示其實形, 必須用 (A)輔助視圖(B)斜投影 (C)剖視圖(D)正視圖。
84. 欲求得斜面之實形,首先需要得到其 (A)側視圖(B)輔助視圖(C)端視圖(D)底視圖。
85. 下列何線可延長作尺度界線用? (A)中心線(B)虛線(C)指線(D)尺度線。
86. 從斜面之垂直方向觀察所得之視圖為 (A)正投影圖(B)斜投影圖(C)輔助投影圖(D)單投影圖。
87. 剖面線是屬於 (A)粗實線(B)細實線(C)點線(D)鏈線。
88. 製圖線條粗細中,屬於中線者為 (A)中心線(B)尺寸線(C)隱藏線(D)延伸線。
89. 圓在等角平面上的投影為 (A)一線(B)一點(C)一橢圓(D)一斜面。
90. 等角圖中三角等軸相隔 (A)45°(B)90°(C)120°(D)180°。
91. 一直線最多可通過幾個象限 (A)二個(B)三個(C)四個(D)不限。
92. 橢圓之長、短徑兩者之差愈大,則其度數愈 (A)大(B)小(C)不變(D)接近正圓。
93. CNS 三視圖的表示方法係採用 (A)第二象限(B)第四象限(C)第三象限(D)第一象限 投影法作圖。
94. 透視圖的投影原理是 (A)平行投影(B)垂直投影(C)中心點投影(D)水平投影。
95. 一動點與二定點之和恆等於一常數的情況下運動所形成的軌跡是為 (A)雙曲線(B)攝線(C)拋物線(D)橢圓。
96. 比例尺中的 1:100 係指以 1 ㎝代表 (A)1公尺(B)1公里(C)10公尺(D)1公丈。
97. 依第三角投影法,排列在前視圖上方的是 (A)左側視圖(B)右側視圖(C)俯視圖(D)仰視圖。
98. 依 CNS 規定折斷線是 (A)粗線(B)細線(C)中線(D)粗細線皆可。
99. 依 CNS 規定,哪一種線條是屬於中線 (A)中心線(B)尺度線(C)虛線(D)割面線。
100. 工程圖中若中心線、虛線、細實線、粗實線重疊在同一線上時,應畫 (A)中心線(B)虛線(C)細實線(D)粗實線。
申論題 (0)
相關試卷
無年度 - 11300 廣告設計 丙級 工作項目 06:設計基礎#19254
#19254
無年度 - 11300 廣告設計 丙級 工作項目 07:廣告相關法規與安全衛生#19253
#19253
無年度 - 11300 廣告設計 丙級 工作項目 06:設計基礎#19252
#19252
無年度 - 11300 廣告設計 丙級 工作項目 04:廣告媒體#19245
#19245
無年度 - 11300 廣告設計 丙級 工作項目 03:印刷概要#19217
#19217
無年度 - 11300 廣告設計 丙級 工作項目 02:攝影#19216
#19216
無年度 - 11300 廣告設計 丙級 工作項目 01:色彩學101-117#19215
#19215
無年度 - 11300 廣告設計 丙級 工作項目 01:色彩學#19214
#19214