阿摩線上測驗
登入
首頁
>
建築圖學
> 103年 - 103 地方政府特種考試_四等_建築工程:建築圖學概要#32109
103年 - 103 地方政府特種考試_四等_建築工程:建築圖學概要#32109
科目:
建築圖學 |
年份:
103年 |
選擇題數:
0 |
申論題數:
17
試卷資訊
所屬科目:
建築圖學
選擇題 (0)
申論題 (17)
依據 CNS 建築製圖的標準,請照圖上,建築線為
(1)
色/土地界線為
(2)
色。
【已刪除】(二)依據 CNS 建築製圖的標準,
表示
(3)
。
【已刪除】(三)CNS 建築製圖的標準,消防設備中,
表示
(4)
。
【已刪除】(四)
為常用型鋼斷面,請問超高層大樓的主結構,會採用那一種?
(5)
。
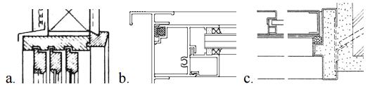
下列圖中有鋼製、木製、鋁製三種門窗詳圖。請問:a.為
(6)
門窗,
b.為
(7)
門窗,
【已刪除】c.為
(8)
門窗。
結構圖中,FB 為
(9)
,F 為
(10)
。
(一)某基地各點高程如下測量圖,若 A=100,B=10,C=90,D=0,E=95,F=5,則基 地周邊排水溝應該設在基地的東南西北那一側?(3 分)
(二)同下測量圖,若 A=100,B=90,C=50,D=40,E=10,F=0,則基地周邊排水溝 應該設在基地東南西北那一側?(3 分)
【已刪除】(三)同下測量圖,若 A=100,B=80,C=15,D=5,E=90,F=70,則基地地形是下凹 或上凸?(4 分)
(一)請繪製 45°/45°等角透視圖(軸側圖/Isometric drawing),1/100。(10 分)
【已刪除】(二)該建物若為水泥澆灌,則水泥共需多少立方公尺?(5 分)
(一)樓梯欄杆扶手做法 2 種。
(二)屋頂女兒牆收邊做法(含防水隔熱)2 種,1/10。
五、請繪製屋頂方形 RC 蓄水池一座,水容量 4 立方米,如下:(35 分) 平面(1/30)、主要剖面(1/30),含防水、爬梯、人孔及蓋、說明等。建築形 式、RC 厚度與內部鋼筋概況等均需合理。
相關試卷
114年 - 114 地方政府公務、離島地區公務特種考試_四等_建築工程:建築圖學概要#134698
114年 · #134698
114年 - 114 普通考試_建築工程:建築圖學概要#128738
114年 · #128738
113年 - 113 地方政府公務特種考試_四等_建築工程:建築圖學概要#124363
113年 · #124363
113年 - 113 普通考試_建築工程:建築圖學概要#121118
113年 · #121118
112年 - 112 地方政府特種考試_四等_建築工程:建築圖學概要#118001
112年 · #118001
112年 - 112 普通考試_建築工程:建築圖學概要#115732
112年 · #115732
112年 - 112 鐵路特種考試_員級_建築工程:建築圖學概要#114920
112年 · #114920
111年 - 111 地方政府特種考試_四等_建築工程:建築圖學概要#112347
111年 · #112347
111年 - 111 普通考試_建築工程:建築圖學概要#109480
111年 · #109480
110年 - 110 地方政府特種考試_四等_建築工程:建築圖學概要#104833
110年 · #104833