所屬科目:技檢◆視覺傳達設計-丙級
1. 「砂目網紋圖片」是使用何種製版照相(A)線條照相(B)分色照相(C)掩色照相(D)過網照相。
2. 就線的基本方向,如為斜角方向,則較會引起何種心理效果(A)權威(B)動態(C)呆板(D)靜寂。
3. 廣告因商品所處之生命週期階段不同而有:a.成長期、b.導入期、c.衰退期、d.成熟期,其順序應為(A)badc(B)bcad(C)abcd(D)dcba。
4. NCS(Nature Color System)色彩體系的色環主色有________個色相。(A)5(B)2(C)4(D)3
5. 下列哪一種氣體較易造成臭氧層被嚴重的破壞?(A)氟氯碳化物(B)二氧化碳(C)氮氧化合物(D)二氧化硫。
6. 許多物體或其某些部份,常因其主要之面平行於主投影面而不能顯示其實形,必須用________表達。(A)斜投影(B)剖視圖(C)輔助視圖(D)正視圖
7. 可製造特殊效果及詭異扭曲的影像,並使所有直線產生筒型畸變的是(A)標準鏡頭(B)魚眼鏡頭(C)望遠鏡頭(D)變焦鏡頭。
8. 在創意發想為擴大思考空間,增強後續思考能量,首先要進行下列何種思考(A)垂直思考(B)收斂思考(C)水平思考(D)轉變思考。
9. 印工的單位是(A)色令(B)磅(C)令(D)才。
10. 下列敘述何者不正確(A)Body Copy 是指說明內文(B)Slogan 是指標語(C)Headline 是指標題(D)Readability 是指辨識度。
11. 下列廣告媒體何者最具廣泛性(A)海報(B)傳單(C)雜誌(D)報紙。
12. 色相、明度、彩度合稱為色彩(A)三原色(B)三屬性(C)三原則(D)三顏色。
13. 圖學的要素是(A)英文字及仿宋字(B)美術圖及工程圖(C)線條及文字(D)正投影與斜投影。
14. 任何物體的表面構成特徵稱之為(A)效果(B)微粒(C)造型(D)肌理。
15. 在焦點平面的前後,皆有一段容許景物清晰的範圍,此範圍我們即稱(A)攝距(B)景深(C)焦距(D)物距。
16. 傳統書法的漢字演變歷史中不曾出現下列何種字體(A)大篆(B)中篆(C)小篆(D)瘦金體。
17. 廠商某甲承攬公共工程,工程進行期間,甲與其工程人員經常招待該公共工程委辦機關之監工及驗收之公務員喝花酒或招待出國旅遊,下列敘述何者正確?(A)因為不是送錢,所以都沒有犯罪(B)公務員若沒有收現金,就沒有罪(C)只要工程沒有問題,某甲與監工及驗收等相關公務員就沒有犯罪(D)某甲與相關公務員均已涉嫌觸犯貪污治罪條例。
18. 下列何者不屬於字體造型的範圍(A)顏色(B)大小(C)外形(D)寬窄。
19. CIE 的中文名稱為(A)國際形象協會(B)國際照明委員會(C)國際色彩流通協會(D)國際平面設計協會。
20. 中國傳統的方位色彩觀,何者正確(A)東:黃,西:白,南:朱,北:青(B)東:白,西:朱,南:黃,北:青(C)東:青,西:黃,南:朱,北:黑(D)東:青,西:白,南:朱,北:黑。
21. 以下何種檔案格式最適用於高品質網片輸出,又可兼顧網路傳輸速度(檔案容量小)是出版業界的共通標準(A)tiff(B)doc(C)pdf(D)jpeg。
22. 下列何種印刷處理方式不會造成印刷面之凹凸立體效果(A)燙金(B)鉛版印刷(C)烤松香(D)數位印刷。
23. 代表圓柱之半徑的符號為(A)R(B)C(C)φ(D)D。
24. 都市中常產生的「熱島效應」會造成何種影響?(A)空氣污染物易擴散(B)增加降雨(C)空氣污染物不易擴散(D)溫度降低。
25. 下列何種紙張印刷品質最穩定,並適用於精細之彩色印刷(A)再生紙(B)模造紙(C)牛皮紙(D)銅版紙。
26. 在曼塞爾(Munsell)的色相環中,下列色相何者明度最低(A)橙色(B)紅色(C)黃色(D)藍色。
27. 以下何者非計算紙張厚度的單位(A)㎝(B)條數(C)公克重(D)磅數。
28. 所謂二度空間亦即是平面空間,下列敘述何者正確(A)平面是由寬度與深度構成(B)二度是指長度與深度(C)二度是指長度與寬度(D)平面具有厚度與深度。
29. 「萬綠叢中一點紅」及「鶴立雞群」為_______的表現。(A)對比(B)調合(C)比例(D)平衡
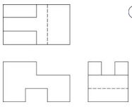
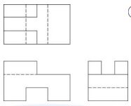
30. 以下三視圖何者正確?(A)(B)(C)(D) 。
31. 下列何種現象不是直接造成台灣缺水的原因?(A)地形山高坡陡,所以雨一下很快就會流入大海(B)台灣地區夏天過熱,致蒸發量過大(C)因為民生與工商業用水需求量都愈來愈大,所以缺水季節很容易 無水可用(D)降雨季節分佈不平均,有時候連續好幾個月不下雨,有時又會下起豪大雨。
32. 學習圖學的目的在於(A)畫圖(B)學習畫圖方式(C)讀圖與製圖(D)看圖。
33. 下列何者不是溫室效應所產生的現象?(A)北極熊棲地減少(B)造成全球氣候變遷,導致不正常暴雨、乾旱現象(C)氣溫升高而使海平面上升(D)造成臭氧層產生破洞。
34. 「除空氣和水以外皆可印刷」是何種印刷版式(A)平版(B)凹版(C)孔版(D)凸版。
35. 某公司員工因執行業務,擅自以重製之方法侵害他人之著作財產權,若被害人提起告訴,下列對於處罰對象的敘述,何者正確?(A)員工只要在從事侵犯他人著作財產權之行為前請示雇主並獲同意,便可以不受處罰(B)該名員工及其雇主皆須受罰(C)僅處罰侵犯他人著作財產權之員工(D)僅處罰雇用該名員工的公司。
36. 色料中藍紫色的補色為(A)綠色(B)青色(C)橙黃色(D)紅色。
37. 國家標準(CNS)工程製圖中,若同時有中心線、虛線、粗實線、細實線重疊時,應該優先畫何者(A)虛線(B)細實線(C)粗實線(D)中心線。
38. 於營造工地潮濕場所中使用電動機具,為防止漏電危害,應於該電路設置何種安全裝置?(A)高容量保險絲(B)自動電擊防止裝置(C)高感度高速型漏電斷路器(D)閉關箱。
39. 色光的三原色係指(A)黃、青、紫(B)紅、黃、紫(C)紅、綠、藍(D)紅、黃、綠。
40. 「珂羅版」是何種印刷版式(A)孔版(B)凸版(C)平版(D)凹版。
41. 相機的對焦系統ㄧ般「自動」是以何種簡稱(A)WB(B)TTL(C)MF(D)AF。
42. 下列何者非屬防止搬運事故之一般原則?(A)以機械代替人力(B)採取適當之搬運方法(C)以機動車輛搬運(D)儘量增加搬運距離。
43. 通常廣告影片,簡稱(A)SB(B)AD(C)PS(D)CF。
44. 1.企劃 2.動腦會議 3.瞭解客戶需求 4.創意製作,以上在廣告設計的流程中次序應為(A)2,3,1,4(B)3,2,1,4(C)3,1,2,4(D)1,3,2,4。
45. 角柱與圓柱使用平行線展開法可得(A)矩形(B)橢圓形(C)菱形(D)圓形。
46. 一般報紙廣告的印刷線數採(A)100 線(B)75 線(C)175 線(D)200 線 為宜。
47. TTL 測光方式是將測光體裝在(A)鏡頭中間(B)鏡頭前方(C)鏡頭後方(D)鏡頭側面。
48. 旋轉剖視是旋轉(A)90°(B)180°(C)30°(D)45°。
49. 下列何者不屬於安海姆的「群化法則」範圍(A)錯視(B)無理圖形(C)對比(D)反轉。
50. 若使用燈光片拍白天戶外攝影會偏(A)綠色(B)藍色(C)紅色(D)黃色。
51. 商品刊登報紙廣告的主要目的是(A)促進商品銷售(B)提振經濟(C)增加閱報率(D)美化報紙版面。
52. 拍攝時光線照射在物體上,物體與光源之間若沒有其他介質影響,這時的光線就被稱為(A)直射光(B)漫射光(C)透射光(D)反射光。
53. 以下何者不符合低污染之綠色包裝設計考量(A)使用不含有害物質的包裝材料(B)使用環保印刷油墨(C)印刷面積滿版超過四色(D)使用不含有害物質的黏劑。
54. 下列純色何者明度最低(A)藍色(B)橙色(C)黃色(D)紅色。