所屬科目:技檢◆視覺傳達設計-丙級
1. 在平面設計上,我們所做的造形稱為圖,圖的周圍即是 (A)線 (B)天 (C)地 (D)畫。
2. 下列書法字體中何者為較早出現的字體 (A)篆書 (B)草書 (C)隸書 (D)行書。
3. POP 廣告具有多樣性,在賣場的效果 (A)會誘導消費者衝動購買 (B)不太容易引起消費者注意 (C)無關消費者產生購買意願 (D)專為製造熱鬧氣氛。
4. 世紀之毒「戴奧辛」主要透過何者方式進入人體? (A)透過觸摸 (B)透過雨水 (C)透過飲食 (D)透過呼吸。
5. 以綠色光線照射攤販上賣的紅色的蘋果,蘋果會呈何種顏色 (A)黃橙色 (B)黑褐色 (C)青綠色 (D)黃綠色。
6. 在創意發想為擴大思考空間,增強後續思考能量,首先要進行下列何種思考 (A)水平思考 (B)轉變思考 (C)收斂思考 (D)垂 直思考。
7. 根據招牌廣告及樹立廣告管理辦法,側懸式招牌廣告縱長未超過 (A)6 公尺 (B)5 公尺 (C)7 公尺 (D)8 公尺 免申請雜項執 照。
8. 下列何種紙張印刷品質最穩定,並適用於精細之彩色印刷 (A)牛皮紙 (B)模造紙 (C)再生紙 (D)銅版紙。
9. 一直線最多可通過幾個象限 (A)三個 (B)四個 (C)不限 (D)二個。
10. 設計師以電腦開始探索設計約於 (A)1960 年代 (B)1970 年代 (C)1950 年代 (D)1980 年代。
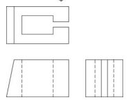
11. 以下三視圖何者正確? (A)(B)(C)(D) 。
12. 比例尺中的 1:100 係指以 1 ㎝代表 (A)1 公丈 (B)1 公尺 (C)1 公里 (D)10 公尺。
13. 減輕皮膚燒傷程度之最重要步驟為何? (A)立即在燒傷處塗抹油脂 (B)在燒傷處塗抹麵粉 (C)立即刺破水泡 (D)儘速用清水 沖洗。
14. 與人眼的視角相近的是 (A)標準 (B)魚眼 (C)廣角 (D)望遠 鏡頭。
15. 「鉛字活版印刷術」的發明人為 (A)王楨 (B)顧登堡 (C)畢昇 (D)蔡倫。
16. 在賓主的關係中,類似又不盡相同,其主題物與襯底間地位有互換的效果,我們通常稱之為 (A)圖地平衡 (B)圖地相稱 (C) 圖地反轉 (D)圖地相合。
17. 「平版印刷術」的發明人為 (A)顧登堡 (B)塞納菲爾德 (C)菲尼古拉 (D)魯貝爾。
18. 以觀察者、物體、投影面之順序排列的一種正投影法為 (A)第三角法 (B)第四角法 (C)第二角法 (D)第一角法。
19. 外形曲折不規律的印品其裁切之位置宜以 (A)十字對位線 (B)每一轉角皆精確畫裁切線 (C)刀模稿線 (D)四角裁切線 表 示。
20. 中型相機使用 120 軟片之 6 ×4.5 ㎝ 的片盒時,1 卷軟片可拍 (A)10 張 (B)8 張 (C)16 張 (D)12 張。
21. 下列敘述何者較為正確 (A)商業設計和廣告設計無關 (B)廣告設計和視覺生理無關 (C)商業設計和視覺心理無關 (D)廣告設 計運用了許多社會流行的心理。
22. 7-ELEVEN 連鎖店,其招牌的標準色有 (A)綠、白、紅 (B)藍、白、紅 (C)綠、紅、橙 (D)黃、紫、紅。
23. 招牌廣告及樹立廣告許可之有效期限為 ______,期限屆滿後應重新申請審查許可或恢復原 狀。(A)七年 (B)三年 (C)五年 (D)一年
24. Homepage 會出現在下列那一個媒體 (A)網路媒體 (B)平面媒體 (C)開放媒體 (D)電子媒體。
25. 下列敘述何者不正確 (A)Slogan 是指標語 (B)Readability 是指辨識度 (C)Body Copy 是指說明內文 (D)Headline 是指標題。
26. 印刷演色表示法上「C」代表 (A)洋紅色 (B)青色 (C)黑色 (D)黃色。
27. 「砂目網紋圖片」是使用何種製版照相 (A)掩色照相 (B)過網照相 (C)分色照相 (D)線條照相。
28. 投影幾何是訓練______度空間的概念。 (A)四 (B)一 (C)三 (D)二
29. 先民所遺留的碑文歷史真蹟是利用 (A)拓印法 (B)剪貼法 (C)漂流沾著法 (D)噴色法 製成字帖千古流芳。
30. 故意侵害他人之營業秘密,法院因被害人之請求,最高得酌定損害額幾倍之賠償? (A)3 倍 (B)1 倍 (C)4 倍 (D)2 倍。
31. 下列有關「平面廣告」的敘述何者正確 (A)圖片效果表現必然優於文字編排 (B)一定要經過印製過程 (C)訊息傳達一定要明 確 (D)必須是集體創作的設計。
32. 廚房設置之排油煙機為下列何者? (A)局部排氣裝置 (B)整體換氣裝置 (C)排氣煙囪 (D)吹吸型換氣裝置。
33. 廣告公司負責完稿作業交付製版的是 (A)AE (B)FA (C)AD (D)CW。
34. 當人們從戶外進入室內暗房時,眼睛會暫時無法適應,此現象稱為 (A)明適應 (B)暗適應 (C)視覺殘像 (D)邊緣對比。
35. 下列何者「違反」個人資料保護法? (A)學校將應屆畢業生之住家地址提供補習班招生使用 (B)公司基於人事管理之特定 目的,張貼榮譽榜揭示績優員工姓名 (C)網路購物公司為辦理退貨,將客戶之住家地址提供予宅配公司 (D)縣市政府提供 村里長轄區內符合資格之老人名冊供發放敬老金。
36. 註入尺寸時, 數字方向應與尺度線成 (A)平行 (B)垂直 (C)相反 (D)傾斜。
37. 設計構成要素中個別存在時,何者不具有伸長的性格 (A)線 (B)點 (C)面 (D)體。
38. 勞工不遵守安全衛生工作守則規定,屬於下列何者? (A)不安全行為 (B)不安全設備 (C)不安全環境 (D)管理缺陷。
39. 兩線所夾之角低於 90°是謂 (A)銳角 (B)直角 (C)非角 (D)鈍角。
40. 下列關於營業秘密的敘述,何者不正確? (A)營業秘密不得為質權及強制執行之標的 (B)受雇人於非職務上研究或開發之 營業秘密,仍歸雇用人所有 (C)營業秘密得全部或部分讓與他人或與他人共有 (D)營業秘密所有人得授權他人使用其營業 秘密。
41. 2.5 令等於______張全開紙。 (A)1500 (B)2500 (C)1000 (D)1250
42. 色相、明度、彩度合稱為色彩 (A)三原則 (B)三原色 (C)三顏色 (D)三屬性。
43. 預塗式平版就是一般稱的 (A)樹脂版 (B)PS 版 (C)彈性版 (D)蛋白版。
44. 最能製造陰影,產生立體感,對紋理的描寫效果特佳的光線為 (A)頂光 (B)右前側面光 (C)正面光 (D)逆光。
45. 首先提出黃金比 1:1.618 的是 (A)美國人 (B)以色列人 (C)希臘人 (D)德國人。
46. 光源對物體色的顯色影響稱為 (A)色覺恆常 (B)色適應 (C)演色性 (D)明適應。
47. 「耐印力最強」是何種印刷版式 (A)孔版 (B)平版 (C)凸版 (D)凹版。
48. 光圈 F4 是 F5.6 的進光量 (A)相等 (B)1/2 倍 (C)2 倍 (D)1 倍。
49. 下列何種媒體是針對消費者的分眾媒體,並較適於說明的廣告媒體為 (A)電台 (B)報紙 (C)雜誌 (D)電視。
50. 依職業安全衛生管理辦法規定,下列何者非屬「自動檢查」之內容? (A)機械、設備之重點檢查 (B)機械之定期檢查 (C)機 械、設備之作業檢點 (D)勞工健康檢查。
51. 下列何者為環保標章? (A)(B)(C)(D) 。
52. 下列何者不會減少溫室氣體的排放? (A)開發太陽能、水能等新能源 (B)減少使用煤、石油等化石燃料 (C)增高燃煤氣體排 放的煙囪 (D)大量植樹造林,禁止亂砍亂伐。
53. 下列何者不屬於基礎造形的基本要素 (A)形態 (B)美感 (C)機能 (D)利益。
54. 視角超過 180°的鏡頭應是______ 鏡頭。(A)長 (B)標準 (C)廣角 (D)魚眼
55. 視圖的選擇以______最少為佳。 (A)外形 (B)實線 (C)折線 (D)虛線
56. 下列何者電磁波的波長小於 380mμ 稱為 (A)紫外線 (B)紅外線 (C)電視波 (D)可視光線。
57. 視網膜視覺網能辨別、感覺色相的是 (A)視束 (B)桿狀細胞 (C)虹彩 (D)錐狀細胞。
58. 相機模式設定中那一個是光圈優先 (A)Av (B)P (C)Tv (D)M。
59. 下列何者燈泡的發光效率最高? (A)LED 燈泡 (B)鹵素燈泡 (C)省電燈泡 (D)白熾燈泡。
60. 一令紙分為四束,其中一束紙有 (A)500 張 (B)100 張 (C)125 張 (D)250 張。
61. 打凸、局部上光等印製加工時,中文字不小於 (A)10pt (B)6pt (C)12pt (D)8pt。
62. 「除空氣和水以外皆可印刷」是何種印刷版式 (A)凹版 (B)平版 (C)孔版 (D)凸版。
63. 欲兼顧採光及降低經由玻璃部分侵入之熱負載,下列的改善方法何者錯誤? (A)換裝雙層玻璃 (B)貼隔熱反射膠片 (C)加裝 深色窗簾 (D)裝設百葉窗。
64. 可以依據光波的反射率之高低來區別色彩的 (A)色相 (B)形式 (C)明度 (D)彩度。
65. NCS(Nature Color System)色彩體系的色環主色有______ 個色相。(A)5 (B)2 (C)4 (D)3
66. 下列何者行為會有侵害著作權的問題? (A)直接轉貼高普考考古題在 FACEBOOK (B)以分享網址的方式轉貼資訊分享於社 群網站 (C)將報導事件事實的新聞文字轉貼於自己的社群網站 (D)將講師的授課內容錄音,複製多份分贈友人。
67. 下列何者不是自來水消毒採用的方式? (A)加入氯氣 (B)加入臭氧 (C)紫外線消毒 (D)加入二氧化碳。
68. 鏡頭上光圈的數值 f/5.6 的開孔為 f/8 的 (A)1/2 倍 (B)4 倍 (C)2 倍 (D)1/4 倍。
69. 以下三視圖何者正確? (A)(B)(C)(D) 。
70. 紅色色料加上黃色色料會產生 (A)紫色 (B)黑色 (C)橙色 (D)綠色。
71. 下列關於圓形的定義敘述何者較為不正確? (A)圓可以是虛的,也可以是點的感覺 (B)圓形與線是具有密切關係與點則無 關 (C)無限大的圓形邊緣,在人類的感覺上是呈現直線的感覺 (D)圓形可以由線條旋轉來構成。
72. 高樓頂上裝置紅燈,是因其何種色彩機能 (A)原色之一 (B)彩度較高 (C)鮮艷好看 (D)波長較長。
73. 二手菸中包含多種危害人體的化學物質,甚至多種物質有致癌性,會危害到下列何者的健康? (A)只對孕婦比較有影響 (B)只有 65 歲以上之民眾有影響 (C)只對 12 歲以下孩童有影響 (D)全民皆有影響。
74. 下列何者不屬於安海姆的「群化法則」範圍 (A)反轉 (B)對比 (C)錯視 (D)無理圖形。
75. 以下三視圖何者正確? (A)(B)(C)(D) 。
76. 以下三視圖何者正確? (A)(B)(C)(D) 。
77. 「朱文白字的印章」是何種版印刷 (A)孔版 (B)平版 (C)凹版 (D)凸版。
78. 下列何者不屬於「對稱」的範圍 (A)水邊的倒影 (B)人體的兩邊 (C)花朵的色彩 (D)車輪的輻線。
79. 下列純色何者明度最高 (A)紅色 (B)藍色 (C)黃色 (D)橙色。
80. 冷凍食品該如何讓它退冰,才是既「節能」又「省水」? (A)直接用水沖食物強迫退冰 (B)用熱水浸泡,每 5 分鐘更換一 次 (C)烹煮前盡早拿出來放置退冰 (D)使用微波爐解凍快速又方便。