所屬科目:技檢◆建築製圖應用-甲級
(A)A≧45 ㎝ (B)A≧65 ㎝ (C)B≧50 ㎝ (D)C≧180 ㎝ 。
(A)A≧150 ㎝(B)A≧130 ㎝ (C)B≧280 ㎝ (D)C≧120 ㎝ 。
(A)A≧230 ㎝ (B)A≧250 ㎝ (C)B≧50 ㎝ (D)B≧60 ㎝ 。
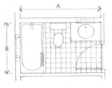
(A)A≧200 ㎝ (B)A≧250 ㎝ (C)B≧120 ㎝ (D)B≧150 ㎝ 。
(A)B 點是秋分 (B)B點是春分 (C)C 點是春分 (D)C 點是夏至 。
(A)牆面使用較大的網格時較使用小的看起來窄 (B)牆面使用較大的網格時較使用小的看起來低 (C)牆面使用較大的網格時較使用小的看起來寬 (D)牆面使用較大的網格時較使用小的看起來高 。