阿摩線上測驗
登入
首頁
>
技檢◆視覺傳達設計-丙級
>
115年 - 20100 視覺傳達設計 丙級 工作項目 05:圖學 1-50(2026/01/07 更新)#136400
> 試題詳解
試題詳解
試卷:
115年 - 20100 視覺傳達設計 丙級 工作項目 05:圖學 1-50(2026/01/07 更新)#136400 |
科目:
技檢◆視覺傳達設計-丙級
試卷資訊
試卷名稱:
115年 - 20100 視覺傳達設計 丙級 工作項目 05:圖學 1-50(2026/01/07 更新)#136400
年份:
115年
科目:
技檢◆視覺傳達設計-丙級
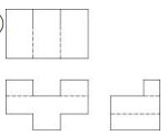
7.
以下三視圖何者正確?
(A)
(B)
(C)
(D)
。
正確答案:
登入後查看