9.
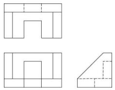
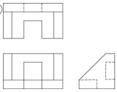
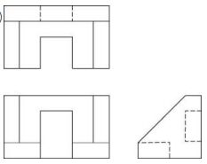
以下三視圖何者正確?
(A)
(B)
(C)
(D)
。
答案:登入後查看
統計: A(1), B(0), C(0), D(0), E(0) #3777923
統計: A(1), B(0), C(0), D(0), E(0) #3777923