阿摩線上測驗
登入
首頁
>
統測◆07設計群◆(一)色彩原理、造形原理、設計概論
> 無年度 - 四技二專統測模擬考:設計圖法#56068
無年度 - 四技二專統測模擬考:設計圖法#56068
科目:
統測◆07設計群◆(一)色彩原理、造形原理、設計概論 |
選擇題數:
13 |
申論題數:
0
試卷資訊
所屬科目:
統測◆07設計群◆(一)色彩原理、造形原理、設計概論
選擇題 (13)
38. 下列對於現行紙張尺寸的相關敘述,何者正確? (A) 我國國家標準規定僅以 B 系列圖紙為主,A 系列圖紙則是市場常用規格 (B) B0 圖紙可以裁切 16 張 B3 圖紙 (C) 某紙尺寸為 210×297 mm 應該就是 A3 紙張 (D) B0 圖紙面積約為 1.5 平方公尺
39. 下列是關於製圖儀器及工具的敘述,請問何者較正確? (A) 針筆上的「0.2」數字是代表該針筆所畫出的線條約為 0.2 英吋 (B) 0.2 規格的針筆是屬於 ISO 針筆,並非傳統規格針筆 (C) 0.2 規格的針筆適合用來繪製 A3 圖面的細線條 (D) ISO 規格的針筆是採用「等距分級」
40. 一張優良的圖面除了精準的圖型之外,字體書寫也是一門重要學問。我國國家標準對於字型有一定的規 範,下列關於字型敘述何者正確? (A) 工程圖中所謂的字型指的是中文字型與英文字型兩種 (B) 等線體方形字的字寬約等於字高 (C) 等線體長形字的字高約為字寬的
(D) 等線體寬形字的字高約為字寬的
41. 下列線型樣式配對中,何者不正確? (A) 中心線→
(B) 輪廓線→
(C) 剖面線→
(D) 尺度線→
42. 為求圖面清晰且不影響正確的識圖條件,線條與線條間盡量不要產生重疊的情事,一般而言線條有其繪 製的先後順序,其理想的先後順序原則為: (A) 剖面線→尺度線、尺度界線→折斷線→中心線、割面線→虛線→實線 (B) 剖面線→虛線→折斷線→中心線、割面線→尺度線、尺度界線→實線 (C) 實線→剖面線→中心線、割面線→折斷線→尺度線、尺度界線→虛線 (D) 實線→虛線→中心線、割面線→折斷線→尺度線、尺度界線→剖面線
43. 下列尺寸標註圖例中,何者最為恰當? (A)
(B)
(C)
(D)
44. 對於各國標準英文縮寫的配對,下列何者不正確? (A) CNS→中國國家標準 (B) ANSI→國際標準化機構 (C) JIS→日本工業標準 (D) BS→英國國家標準
45. 鉛筆是製圖時最常使用也是必備的基本用具,鉛筆的筆蕊依用途會有軟硬的區分,下列排列由軟到硬何 者正確? (A) 2B→HB→F→H→2H (B) 2H→H→F→HB→2B (C) 2B→F→HB→H→2H (D) 2H→F→H→HB→2B
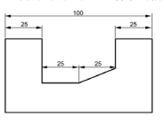
46. 右圖是一個局部圖面,請問哪一個選項的線條交接畫法錯誤? (A) A (B) B (C) C (D) D
47. 依據 CNS 標準規定線條的粗細可分為粗、中、細三種線條,請問中線條應該繪製在哪個種類? (A) 隱藏線 (B) 剖面線 (C) 假想線 (D) 割面線
48. 工程英文字在製圖時可以有「正體」與「斜體」兩種形式書寫,試問當工程英文字以「斜體」書寫時, 字母傾斜角度必須與水平線呈多少度角? (A) 65 (B) 75 (C) 80 (D) 85
49. 英文工程字在書寫時,單字與單字之間的距離以能插入一個什麼字母為原則? (A) A (B) W (C) X (D) O
50. 中文工程字體書寫的畫筆粗細和字距、行距都有一定規定,請問下列選項何者正確? (A) 畫筆粗細:字高的 1/15,字距:字高的 1/3,行距:字高的 1/8 (B) 畫筆粗細:字高的 1/8,字距:字高的 1/15,行距:字高的 1/3 (C) 畫筆粗細:字高的 1/3,字距:字高的 1/8,行距:字高的 1/15 (D) 畫筆粗細:字高的 1/15,字距:字高的 1/8,行距:字高的 1/3
申論題 (0)
相關試卷
115年 - 115 身心障礙學生升學大專校院甄試試題_四技二專組_設計群_專業科目(一):色彩原理、造形原理、設計概論#139549
115年 · #139549
115年 - 115 四技二專統測_設計群_專業科目(一):色彩原理、造形原理、設計概論#139315
115年 · #139315
114年 - 114 四技二專統測_設計群_專業科目(一):色彩原理、造形原理、 設計概論#137674
114年 · #137674
114年 - 114 身心障礙學生升學大專校院甄試試題_四技二專組(設計群):色彩原理、造形原理、設計概論#137225
114年 · #137225
113年 - 113 身心障礙學生升學大專校院甄試試題_四技二專組_設計群_專業科目(一):色彩原理、造形原理、設計概論#125700
113年 · #125700
113年 - 113 四技二專統測_設計群_專業科目(一):色彩原理、造形原理、 設計概論#119643
113年 · #119643
112年 - 112 四技二專統測_設計群_專業科目(一):色彩原理、造形原理、 設計概論#114392
112年 · #114392
111年 - 111 身心障礙學生升學大專校院甄試試題_四技二專組_設計群_專業科目(一):色彩原理、造形原理、設計概論#118789
111年 · #118789
111年 - 111 四技二專統測_設計群:專業科目(一)色彩原理、造形原理、設計概論#107664
111年 · #107664
110年 - 110 四技二專統測_設計群_專業科目(一):色彩原理、造型原理、設計概論#98487
110年 · #98487