所屬科目:教甄◆生活科技專業
103. 奈米的大小? (A) (B) (C) (D) 公尺。
104. 如圖之等角圖,請選出其三視圖 (A) (B) (C) (D)
105. 圖中,其正確右側視圖為 (A) (B) (C) (D)
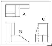
113. 一物體的三視圖有其固定位置(如圖所示),A、B、C各代表物體的不同投影面,試問依A、B、C之排序其對應之名稱應為 (A)仰視圖、前視圖、右側視圖 (B)俯視圖、前視圖、左側視圖 (C)俯視圖、前視圖、右側視圖 (D)俯視圖、仰視圖、右側視圖。
114. 三視圖中,如附圖 ,代表相鄰二面的可能形狀為何? (A)高低不同 (B)斜度不同 (C)凹凸不同 (D)以上皆是。
130. 圖為一家庭常見傳輸線,請問該傳輸線是 (A)AV端子 (B)立體聲接頭 (C)光纖接頭 (D)同軸電纜。
136. 圖中,其正確的立體等角圖為 (A) (B) (C) (D)
137. 請於選項中,找出代表附圖的正確三視圖? (A) (B) (C) (D)