阿摩線上測驗
登入
首頁
>
建築計畫與設計
> 102年 - 102年專門職業及技術人員高等建築師、技師、第二次食品技師暨普通不動產經紀人、記帳士考高等_建築師#28058
102年 - 102年專門職業及技術人員高等建築師、技師、第二次食品技師暨普通不動產經紀人、記帳士考高等_建築師#28058
科目:
建築計畫與設計 |
年份:
102年 |
選擇題數:
0 |
申論題數:
2
試卷資訊
所屬科目:
建築計畫與設計
選擇題 (0)
申論題 (2)
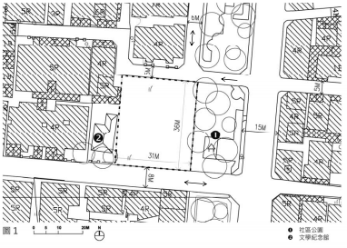
一、題目:都市填充—住商複合使用建築 二、題旨:都市環境的永續發展,理想狀態是長時間裡,以局部新陳代謝的方式,讓建 築物呈有機性的成長。然而短時間內大尺度的開發營建也會發生,結果常造 成對環境紋理及市民集體空間記憶的破壞。 為了確保集居環境品質的良性發展,個別地塊的營建行為,除了滿足其功能 外,更應扮演在環境成長中一健康基因的角色。 三、基地描述: 1.本次設計基地位於臺灣某城市內一條次要街道的西側。此街道兩側為地區性商店, 包括了餐飲、服飾、眼鏡行、診所、及超商等。 2.基地略呈方形,南北兩側為巷道,東臨社區公園,公園外側為街道。基地西面為 一日式的歷史住宅建築,近年修復成為一文學紀念館,並對外開放(見圖 1)。 3.基地面積 1,116 m2 ,位於住宅區內,使用分區為「住三」(容積率 225%,建蔽率 45%)。「住三」是都市內常見的住宅使用分區,當其基地面臨 8m(含 8m)以 上道路時,底層可以經營服飾、餐飲、書店等(見圖 2)。 ⑴建築計劃:(30 分) 本基地為某公益基金會所有。為提供鄰近地區學生及年輕家庭居住需求,計劃興 建一合宜住商建築,並以較市場為低的租金分租。原則如下: 1.營造無障礙及綠色生態的建築環境。 2.基金會受政府委託,同時負責西側文學紀念館之營運。紀念館的戶外空間可以 與本基地整體規劃,並對外開放。 3.本建築以提供出租單元為主,居住單元類型如下: 單身套房(1~2 人),室內實際面積 25 m2 ~30 m2 。 家庭 2 房(3~4 人),室內實際面積 60 m2 ~70 m2 。 以上兩種住宅單元數量各半。 4.地面層以商店出租。商店的類型自行擬定,並檢討與住宅空間的使用關係。 5.建築總面積不可超過法定容積(及依法規規定免計之相關面積)。為了環境品 質,容積亦可不全數使用,但以不少於法定容積之 80%為原則。 6.建築總樓地板面積除淨空間(室內空間)需求外,應合理判斷粗面積(公共空 間)的比例及數量。 7.基地內提供機車 20 輛,汽車 10 輛的停車需求。 根據以上題旨、基地描述、及計劃原則,請撰寫建築計劃書。內容包括目標願景、 基地分析、設計策略、空間概要(面積及屬性說明)、及營運管理。文字不超過 1,500 字,並可輔以圖像表達。
【已刪除】⑵建築設計:(70 分) 以上面所擬的建築計劃書內容(定性及定量需求),在指定基地內呈現你的設計 想法。表達的重點有四: 1.清楚詮釋設計對周邊環境的態度。 2.配置策略:包含基地內開放空間如何對應物理環境,及各種日常活動的需求。 3.對複合住商建築類型的理解:住宅單元室內、外空間的轉換,及結構、水電、 空調系統的說明。 4.鄰里概念:界定由公共至私密的領域層級;公共空間應促進居民的交流,以培 養守望相助的精神。 基本建築設計圖要求如下: 1.配置圖(含景觀設計):比例 1/300 2.全區地面層平面圖及重要的其他樓層平面圖:比例 1/200 3.主要立面圖:比例 1/200 4.剖面圖(雙向):比例 1/200 5.全區以透視圖或等角透視圖表示:比例自訂 6.構造細部詳圖:比例自訂
相關試卷
114年 - 114 專技高考_建築師:建築計畫與設計#133696
114年 · #133696
113年 - 113 臺灣菸酒股份有限公司從業職員及從業評價職位人員甄試_建築工程(北一區)_專業科目 3:建築計畫與設計#137390
113年 · #137390
113年 - 113 專技高考_建築師:建築計畫與設計#123785
113年 · #123785
112年 - 112 臺灣菸酒股份有限公司從業職員及從業評價職位人員甄試_從業職員/建築(土木)工程:建築計畫與設計#137488
112年 · #137488
112年 - 112 專技高考_建築師:建築計畫與設計#117518
112年 · #117518
112年 - 112 高等考試_三級_建築工程:建築設計#115213
112年 · #115213
111年 - 111 臺灣菸酒股份有限公司_從業職員及從業評價職位人員甄試試題_從業職員/建築 (土木 )工程 (北一區 ):建築計畫與設計#137501
111年 · #137501
111年 - 111 專技高考_建築師:建築計畫與設計#111967
111年 · #111967
110年 - 110 專技高考_建築師:建築計畫與設計#104228
110年 · #104228
109年 - 109 專技高考_建築師:建築計畫與設計#93298
109年 · #93298