所屬科目:統測◆01機械群◆(二)機械製造、機械基礎實習、製圖實習
9. 塑膠加工須考慮其製品分類與回收,若某塑膠製品的回收標章如圖(二)所示,下列的敘述何者正確? (A) 為第二類熱固性塑膠材料 (B) 塑膠材質為高密度聚乙烯 (C) 屬於纖維強化塑膠的一種 (D) 用在製作發泡保麗龍成品
16. 一金屬材料進行拉伸試驗,其結果如圖(三)所示,若要進行塑性加工,採用下列何種大小的工作應力(MPa )較合適? (A) 350 (B) 420 (C) 650 (D) 780
30. 如下圖(四)所示,關於金屬電弧銲(MIG)銲接變數的敘述,下列何者正確? (A) 電極與母材間距離太大時,電流增加,電弧變大,電弧不安定 (B) 噴嘴高度太高時,易產生氣泡,看不見銲接線 (C) 銲接母材表面油鏽附著量多時,易產生氣孔 (D) 銲接速度太快時,銲道寬大,易產生過熔、燒缺
38. 在表面織構符號中,試問下列哪一組表面紋理方向與工件外形輪廓完全有關? (A)(B) (C) (D)
39. 如圖(五)所示為單一零件的示意圖,下列何者為正確的半視圖表示法? (A) (B) (C) (D)
40. 圖 ( 六 ) 為導圓角立體視圖,若需用第三角法的兩視圖 ( 上圖為俯視圖,下圖為前視圖 ) 表示方式,則下列表示法何者正確? (A) (B) (C) (D)
41. 如圖(七)所示,一物體的俯視圖與右側視圖(第三角投影法),下列何者為正確的前視圖? (A) (B) (C) (D)
42. 如圖(八)所示,在同一圖面上X、Y、Z三個物件與比例標註,其實際面積大小順序為何? (A) X>Y>Z (B) Y>Z>X (C) Z>X>Y (D) Z>Y>X
43. 繪製線條交接或平行時,下列圖示何者不正確? (A) (B) (C) (D)
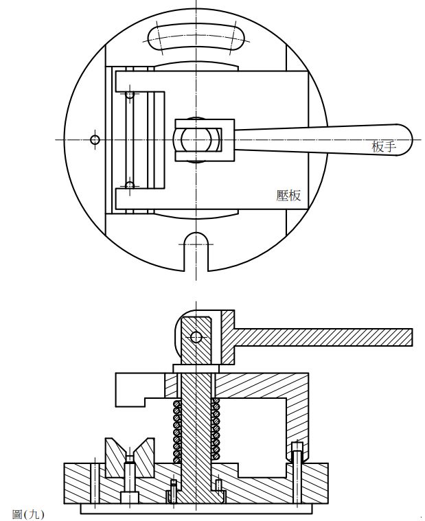
47. 圖 ( 九 ) 為對稱式圓桿夾具組件,圓形底板左右對稱,兩側皆可獨立安裝組件,本夾具利用凸輪偏心板手上下扳動,帶動壓板上下移動,達到快速夾持圓桿,若單側裝配該夾具組件 ( 上圖為俯視示意圖,下圖為前視剖面示意圖 ) ,使其能正常夾持動作,試問最少零件數目需幾個? (A) 10 (B) 11 (C) 12 (D) 13
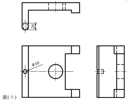
48. 下圖(十)為對稱式圓桿夾具中壓板的三視圖,若想在此三視圖中標註尺寸達到不重複標註及最簡標註方式 ( 依 CNS 標準 ) ,除圖面上的尺寸外,試問還需另外補充標註尺寸數目為多少? (A) 13 (B) 15 (C) 17 (D) 19
49. 如圖(十一)所示,一物體的三視圖(第三角投影法),則其具有幾個單斜面與複斜面? (A) 一個單斜面與二個複斜面 (B) 二個單斜面與一個複斜面 (C) 一個單斜面與一個複斜面 (D) 二個單斜面與二個複斜面