所屬科目:高中技藝◆電腦輔助機械製圖
1. SAE3140 合金鋼中,40 代表 (A)含鉻 0.4% (B)鎳鉻鋼 (C)含鎳量 0.40% (D)平均含碳量為 0.40%
2. 白鑄鐵使用何種熱處理方式成為展性鑄鐵,將使碳化鐵形成石墨 和純鐵可改善切削性? (A)回火 (B)退火 (C)淬火 (D)正常化
3. 請問材料經滲硫處理的目的為何? (A)使表面耐磨 (B)使易於油漆 (C)使表面軟化 (D)使表面清潔
4. 有關粉末冶金之敘述,下列何者錯誤? (A)適用於小件大量之產品製造 (B)可製作多孔性產品 (C)燒結須加熱至粉末溶解溫度以上 (D)燒結後之成品可利用精整模具沖壓至精確尺寸
5. 分度頭上以布朗沙普(B&S)分度板孔數為 15、16、17、18、19、20, 等分為 25°30′時,其分度曲柄應轉動多少圈? (A) (B) (C) (D)
6. 一車軸之轉數為 750rpm 時,傳送之扭矩為 30kg-m,試求此時之功率 為多少公制馬力? (A) 10π (B) 7.5π (C)5π (D) 3π
7. 兩個彈簧的彈簧常數各為 k1、k2,則此兩彈簧串聯時之總彈簧常數為 (A) k1 + k2 (B) k1-k2 (C) k1 × k2 (D)
8. 一正齒輪之周節為 15.7mm 時,則其模數為 (A) 5 (B) 3.14 (C) 1.57 (D) 0.5
9. 兩正齒輪嚙合內齒輪傳動,轉向相同,若中心距離為 200mm,模數為 4,小齒輪數為 20 齒,則大齒輪與小齒輪的轉速比為? (A) 1 : 6 (B) 1 : 3 (C) 1 : 4 (D) 6 : 1
10. 下列有關連桿機構的敘述何者錯誤? (A)連桿裝置中,桿與桿間利用軸銷加以連結 (B)四連桿裝置中,能繞固定軸擺動者稱為曲柄 (C)在連桿裝置中,應用最廣泛的是四連桿組 (D)曲柄搖桿機構可將圓周運動變成搖擺運動
11. 在強韌性材料上攻絲時,宜使用何種螺絲攻攻制? (A)無溝 (B)深孔 (C)增徑 (D)先端
12. 有關量具敘述,下列何者錯誤? (A) 內、外徑分厘卡規格是每 25 mm 尺寸範圍設計各有一支 (B) 塊規相疊使用時,為確保精度以採用最少塊數為原則 (C)光學比較儀可測量螺紋角、節徑、齒厚及螺旋角等 (D)模具業常用三點式內徑分厘卡進行內孔量測
13. 幾何公差與長度或角度公差相互抵觸時,應以何者為準? (A)角度公差 (B)幾何公差 (C)長度公差 (D)改用通用公差
14. 有關金屬電極電弧焊使用焊條之焊劑塗層的功能,哪一項錯誤? (A)產生保護性的氣體 (B)穩定電弧 (C)增加熔融金屬的濺散 (D)除去氧化物以及其他雜質
15. 下列何者不是 DLP (數位光處理)的特點? (A)成型速度較快,比 SLA 成型技術更慢 (B)列印過程中耗材較多 (C)液態樹脂材料具有一定的毒性,列印時應於封閉空間中進行 (D)成品精度高、質量均勻且零件表面光滑
16. 有關尺度標註的符號所代表意義的敘述,下列何者錯誤? (A)半徑符號以”R”表示 (B)直徑符號以”∅”表示 (C)弧長符號以”︵”表示 (D)錐度符號以” ”表示
17. 下列有關公差配合的敘述,何者正確? (A)IT 公差等級愈高,公差範圍愈小 (B)一軸件與數件孔件配合時宜使用基孔制 (C)鬆配合是軸件尺寸大於孔尺寸 (D) IT5~IT10 用於配合機件公差
18. 餘隙配合時,孔的公差為 H5,則軸的公差應選? (A) e7 (B) g6 (C) f6 (D) g4
19. 一輛 2200kg 重的汽車停於一傾斜角度為θ的斜坡上,若斜坡地面與 輪胎接觸面間之靜摩擦係數為 0.5,動摩擦係數為 0.2,則 tanθ之最 大值為多少而不致使車輛往下滑動? (A) 0.2 (B) 0.5 (C) 0.8 (D) 3.0
20. 下列有關加速度之定義,何者錯誤? (A)牛頓第二運動定律為描述力、質量及加速度三者之關係 (B)加速度方向與合力方向一致 (C)加速度為向量 (D)向心加速度數值大小正比於切線速度數值大小
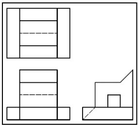
(1)請依圖示之正投影視圖選擇所缺之正確視圖
(A)(B)(C)(D)
27.(1)請依圖示之正投影視圖選擇所缺之正確視圖(A)(B)(C)(D)
28.(1)請依圖示之正投影視圖選擇所缺之正確視圖(A)(B)(C)(D)
29.(1)請依圖示之正投影視圖選擇所缺之正確視圖(A)(B)(C)(D)
30.(1)請依圖示之正投影視圖選擇所缺之正確視圖(A)(B)(C)(D)
21.
22.
23.
24.
25.
(2)並於下方空格徒手畫等角立體圖(隱藏線不需繪出),並請依右上角圖示方向繪製。