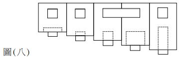
32. Joe建築師執行一棟位於嘉義的私人藝廊設計案,依據俯視圖(八)提出四個前視圖方案, 並以陰影表達造型的凹凸。下列何者不符合俯視圖的條件?
(A)
(B)
(C)
(D)
答案:登入後查看
統計: 尚無統計資料
統計: 尚無統計資料
32. Joe建築師執行一棟位於嘉義的私人藝廊設計案,依據俯視圖(八)提出四個前視圖方案, 並以陰影表達造型的凹凸。下列何者不符合俯視圖的條件?
(A)
(B)
(C)
(D)