阿摩線上測驗 登入

試題詳解

試卷:115年 - 21400 金屬成形 乙級 工作項目 05:彎曲成形 1-50(2026/01/12 更新)#136729 | 科目:技檢◆金屬成形-乙級

試卷資訊

試卷名稱:115年 - 21400 金屬成形 乙級 工作項目 05:彎曲成形 1-50(2026/01/12 更新)#136729

年份:115年

科目:技檢◆金屬成形-乙級

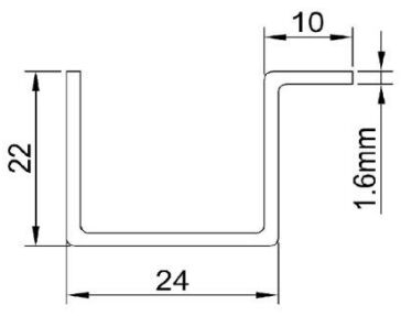
48. 如下圖,厚度 1.6mm 鋼板,使用 CNC 折床彎折單邊伸長量為 1.4mm 之材料,成形前其展開總長為


(A)69.6mm
(B)73.2mm
(C)74.4mm
(D)76.0mm 。

正確答案:登入後查看