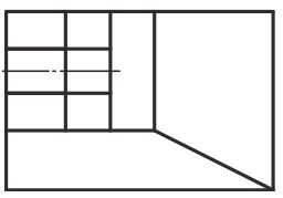
40. 如圖 ( 二 ) 所示為一物件之正投影三視圖 ( 第三角法 ) ,已知前視圖與右側視圖,下列何者 為正確的俯視圖?
(A)
(B) 
(C) 
(D)
答案:登入後查看
統計: A(2), B(0), C(0), D(1), E(0) #3876330
統計: A(2), B(0), C(0), D(1), E(0) #3876330