阿摩線上測驗
登入
首頁
>
機械製圖
> 無年度 - 東海高中汽車科 機械製圖 第七章尺度標註與註解51-100#24291
無年度 - 東海高中汽車科 機械製圖 第七章尺度標註與註解51-100#24291
科目:
機械製圖 |
選擇題數:
50 |
申論題數:
0
試卷資訊
所屬科目:
機械製圖
選擇題 (50)
51. 圓錐長80錐度
則其兩端直徑的差是 (A)1 (B)2 (C)3 (D)4。
52. 尺度線之間隔約為字高的 (A)2 (B)3 (C)4 (D)5 倍。
53. 下列何者的尺度標註方法錯誤? (A) (B) (C) (D)
。
54. 中心線的延長線可以代替 (A)尺度線 (B)輪廓線 (C)虛線 (D)尺度界線。
55. 下列何者為更改尺度表示法?(A) (B) (C) (D)
。
56. 尺度數字前加「t」表示 (A)間隙 (B)斜度 (C)頂點 (D)板厚。
57. 為了正確標註尺度,繪圖者必須了解 (A)機件製造加工程序 (B)成品尺度量測方法 (C)製造成本 (D)以上皆是。
58. 尺度標註中「
」符號表示 (A)缺口 (B)平面 (C)端面 (D)正方形。
59. 下列有關尺度標註,何者正確? (A)以同一基準面標註尺度 (B)宜採標註連續尺度 (C)以累積誤差方式控制成品誤差 (D)每一尺度均訂定精度公差以確保品質。
60. 指線最好與水平線成 (A)80 ₒ (B)60ₒ (C)40 ₒ (D)20ₒ
61. 凡是決定各部位形態(平面或圓)相互間位置的尺度,稱為 (A)形態尺度 (B)平面尺度 (C)位置尺度 (D)大小尺度。
62. mm是
的幾倍 (A)10 (B)100 (C)1000 (D)
。
63. 下列何者是尺度標註的重要原則? (A)不可重複、多餘 (B)不可遺落 (C)合理易讀 (D)以上皆是。
64. 標註半徑尺度時數字前,必須加半徑符號 (A)A (B)D (C)P (D)R。
65. 連續狹窄部位之尺度標註時箭頭可畫成 (A)小三角形 (B)小圓點 (C)短斜線 (D)省略不畫。
66. 圖中允許出現何種尺度? (A)重複尺度 (B)多餘尺度 (C)參考尺度 (D)以上皆不可。
67. 標註線長之尺度線應與所標註工件之輪廓線 (A)平行 (B)垂直 (C)傾斜 (D)成角度。
68. 機件圖形上所標註的尺度有二種,即 (A)大小與位置 (B)長度與方向 (C)方向與角度 (D)長度與角度。
69. 標註稜柱的尺度,通常只需標示出 (A)高度及寬度 (B)深度及寬度 (C)對角距離與長度 (D)深度及高度。
70. 如前視圖可表示物體之高與寬,則側視圖可表示物體之 (A)深、寬 (B)寬、高 (C)深、高 (D)深、高、寬。
71. 有關尺度的標註,下列何者錯誤? (A)最外側的尺度線距離尺度界線末端約2~3mm (B)必要時,輪廓線和中心線可直接當尺度線使用 (C)同一側的尺度線並列時,其間隔約為字高的2倍 (D)水平方向的尺度,其數字應朝上書寫;垂直方向的尺度,則數字應朝左書寫。
72. 機件尺度標註時,供製造者讀圖時參考用的尺度,稱為 (A)位置尺度 (B)大小尺度 (C)參考尺度 (D)功能尺度。
73. 提供給製造者或檢驗者測量尺度的參考者為 (A)製造尺度 (B)檢驗尺度 (C)測量尺度 (D)參考尺度。
74. 有關尺度標註之選擇與安排,下列何者錯誤? (A)尺度標註在虛線部分 (B)尺度標註於視圖外 (C)尺度標註於輪廓特徵上 (D)必要時尺度可標註於視圖內。
75. 有關尺度標註的符號所代表意義,下列何者錯誤? (A)直徑符號以「
」表示 (B)半徑符號以「R」表示 (C)弧長符號以「
」表示 (D)錐度符號以「
」表示。
76. 將尺度數字加括弧者是表示 (A)多餘尺度 (B)參考尺度 (C)錯誤尺度 (D)未按比例尺度。
77. 下列各圖的尺度標註,何者不正確? (A) (B) (C)(D)
。
78. 如圖中尺度之標註法,稱為
(A)並列尺度 (B)累進尺度 (C)極座標尺度 (D)直列尺度 標註法。
79. 如圖中尺度之標註法,稱為
(A)並列尺度 (B)累進尺度 (C)極座標尺度 (D)直列尺度 標註法。
80. 下列各圖之尺度線和尺度界線表示法,何者正確? (A) (B) (C) (D)
。
81. 如圖中尺度之標註法,稱為
(A)並列尺度 (B)累進尺度 (C)極座標尺度 (D)直列尺度 標註法。
82. 下列關於尺度標註的敘述,何者不正確? (A)中心線可做為尺度界線使用 (B)尺度應儘量標註在視圖外 (C)指線用粗實線繪製,與水平線約成45 或60 (D)水平方向的尺度數字應朝上書寫。
83. 機械製圖時,下列何者為常用的放大比例? (A)1:2 (B)2:1 (C)1:3.33 (D)3.33:1。
84. 下列何者是尺度安置原則? (A)尺度標註於視圖外 (B)尺度安置於兩視圖之間 (C)尺度儘量標註在前視圖 (D)以上皆是。
85. 下列有關尺度與尺度界線的表示方法,何者正確?(A)(B)(C)(D)
。
86. 尺度可歸納為哪兩種? (A)寬度與高度 (B)寬度與深度 (C)深度與高度 (D)位置與大小 尺度。
87. 下列有關尺度線與尺度界線的表示方法,何者正確?(A)(B)(C)(D)
。
88. 設定標註尺度之基準面,下列選擇何者正確? (A)加工面 (B)對稱中心 (C)圓桿件之端面 (D)以上皆是。
89. 工程圖中凡是不能用視圖或尺度表達的資料,常以文字表示者,稱為 (A)重要資料 (B)特別說明 (C)註解 (D)備註。
90. 一般製圖上未鑽穿的鑽孔端部圓錐角均畫為 (A)90ₒ (B)180ₒ (C)45 ₒ (D)120 ₒ
91. 工程圖中標註註解的正確位置是 (A)指線的斜線上 (B)指線的水平線上 (C)指線的斜線及水平線上 (D)圖中空白處。
92. 下列正確角度標註為(A)(B)(C)(D)
(。
93. 直圓柱的尺度須標註 (A)寬度和深度 (B)寬度和高度 (C)深度和高度 (D)直徑和高度。
94. 下列有關尺度數字及尺度線的標註何者不正確?
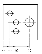
(A)(B)(C)(D)
95. 位置尺度之基準面應取自 (A)光胚面 (B)粗糙面 (C)加工面 (D)任意面。
96. 狹窄部位的尺度標註,下列敘述何者錯誤? (A)尺度線之箭頭在外側朝內 (B)尺度線中斷數字,書寫在中間 (C)尺度線不中斷,數字書寫在上方 (D)尺度線不中斷,數字書寫在左方或右方。
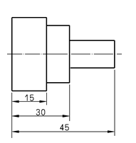
97. 關於機械零件狹窄部位的尺度標註,下列哪一項為不正確? (A) (B) (C) (D)
。
98.
左圖之尺度標註表示 (A)主要尺度 (B)未按比例繪製尺度 (C)多餘尺度 (D)參考尺度。
99. 參考尺度的表示法為(A) (B) (C) (D)
。
100. 下列何者不是標註物體特徵尺度的符號?(A)
(B)R (C)S
(D)F。
申論題 (0)
相關試卷
114年 - 114 全國高級中等學校學生技藝競賽考試_工業類:機械製圖#137980
114年 · #137980
113年 - 113 全國高級中等學校學生技藝競賽考試_工業類:機械製圖#138094
113年 · #138094
112年 - 112 全國高級中等學校學生技藝競賽考試_工業類:機械製圖#138263
112年 · #138263
111年 - 111 全國高級中等學校學生技藝競賽考試_工業類:機械製圖#138312
111年 · #138312
111年 - 111 臺北市市立高級中等學校正式教師聯合甄選:機械/製圖科#107361
111年 · #107361
110年 - 110 全國高級中等學校學生技藝競賽考試_工業類:機械製圖#139130
110年 · #139130
110年 - 110 全國高級中等學校學生技藝競賽考試_工業類:機械製圖#138613
110年 · #138613
108年 - 108 全國高級中等學校學生技藝競賽考試_工業類:機械製圖#139133
108年 · #139133
107年 - 107 全國高級中等學校學生技藝競賽考試_工業類:機械製圖#139732
107年 · #139732
107年 - 107 全國高級中等學校學生技藝競賽考試_工業類:機械製圖#139394
107年 · #139394