所屬科目:圖學
二、請將圖1用幾何作圖的方法依所標註尺度抄繪其圖形,並請保留等分一個線條的過程 痕跡(若以尺度平均計算的方式來等分線條將予以扣10分。不必標註尺度)。(20分)
三、請將圖2以所指定之尺度抄繪其圖形(不必標註尺度及中心線)。(20分)
四、請繪出立體圖(圖3)的三視圖(比例1:2),並標註完整尺度。(30分)
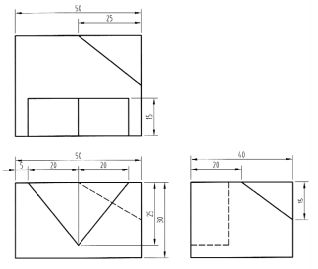
五、請繪出三視圖(圖4)的立體圖(任選一種立體圖,須晝隱藏線,但不須標註尺度, 以比例1 : 1繪製)。(20分)